Pokličite nas na mobilno številko
051 - 428 -511
ali nam pišite na
info@groficevransko.si
Domov
Stanovanja
Lokacija
Galerija
Novice
O nas
Domov
Stanovanja
Lokacija
Galerija
Novice
O nas
Poslovni prostor
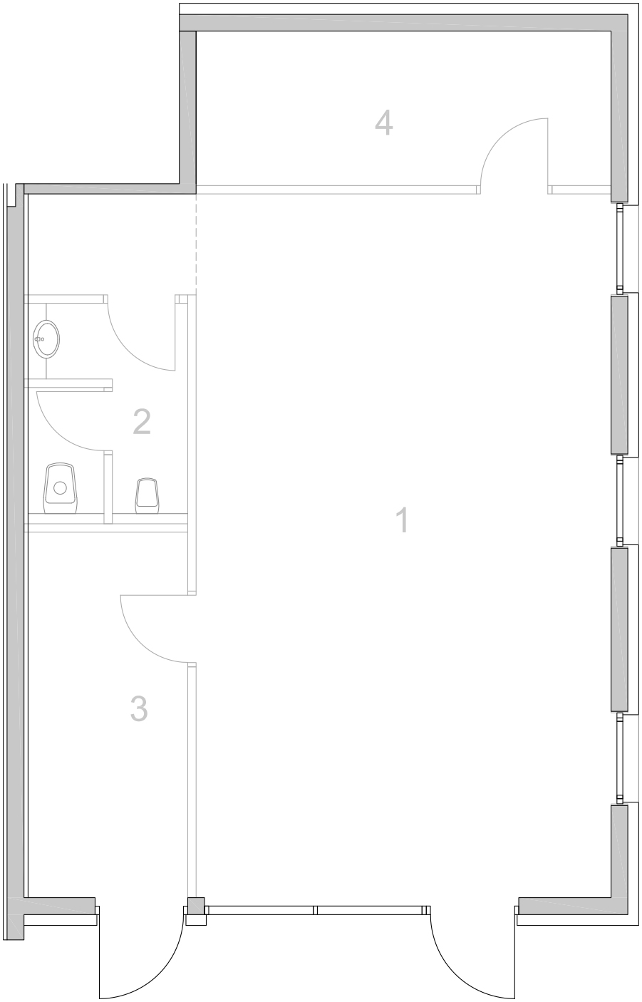
V spodnji tabeli in priloženem tlorisu lahko razberete površine:
Poslovni prostor
m2
1
POSLOVNI PROSTOR
44,40
2
SANITARIJE
4,74
3
PISARNA
8,45
4
SKLADIŠČE
9,04
Skupaj
66,63
Nazaj na vsa stanovanja